THÔNG TƯ (10/2021/TT-BTNMT)
QUY ĐỊNH KỸ THUẬT QUAN TRẮC MÔI TRƯỜNG VÀ QUẢN LÝ THÔNG TIN, DỮ LIỆU QUAN TRẮC CHẤT LƯỢNG MÔI TRƯỜNG
XÁC ĐỊNH VỊ TRÍ, SỐ ĐIỂM QUAN TRẮC KHÍ THẢI VÀ CÁC MẪU BIÊN BẢN QUAN TRẮC HIỆN TRƯỜNG
(Ban hành kèm theo Thông tư số10/2021/TT-BTNMT ngày 30 tháng 06 năm 2021 của Bộ trưởng Bộ Tài nguyên và Môi trường)
I. Quy định chung
Phụ lục này hướng dẫn tóm tắt phương pháp US EPA Method 1 nhằm hướng dẫn xác định vị trí và số điểm quan trắc khí thải.
Phương pháp này không áp dụng trong các trường hợp sau:
+ Dòng khí ở chế độ chảy xoáy hay chảy rối;
+ Ống khói có đường kính nhỏ hơn 0,3 m.
Khoảng cách từ vị trí lấy mẫu đến vị trí thay đổi dòng (cong, nở, thắt…) nhỏ hơn 2 lần đường kính theo chiều xuôi dòng khí và nhỏ hơn 0,5 lần đường kính ống khói (hoặc ống phóng không) theo chiều ngược dòng khí.
Việc xác định vị trí và số lượng điểm quan trắc đối với các ống khói có đường kính nhỏ hơn 0,3 m sử dụng phương pháp US EPA Method 1A.
Không lấy mẫu bụi và đo vận tốc khí thải ở điểm giữa (hay tâm) của tiết diện ống khói.
II. Thiết bị và dụng cụ
Thước dây, sổ ghi chép, bút chịu nhiệt.
Các loại đồng hồ đo chênh áp, áp kế dạng nghiêng, hình chữ U.
III. Quy trình thực hiện
Vị trí lỗ lấy mẫu và số điểm hút mẫu phụ thuộc vào mục tiêu xác định vận tốc khí thải, các chất ô nhiễm dạng khí hay bụi.
1. Xác định vị trí lỗ lấy mẫu
Nguyên tắc: vị trí lỗ lấy mẫu phải nằm trên mặt phẳng tiết diện của đoạn ống khói thẳng.
Cách xác định: vị trí lỗ lấy mẫu nằm trên ống khói dựa vào việc xác định đoạn A, đoạn B, đường kính trong D và thỏa mãn điều kiện: B ≥ 2D và A ≥ 0,5D. Trong trường hợp lý tưởng, vị trí lỗ lấy mẫu thỏa mãn điều kiện: B = 8D và A = 2D (Hình 1).
Minh họa A, B và D trên Hình 1:
– Đoạn A: là đoạn tính từ vị trí có sự thay đổi dòng đến vị trí lấy mẫu tính theo chiều ngược chiều dòng khí;
– Đoạn B: là đoạn tính từ vị trí có sự thay đổi dòng đến vị trí lấy mẫu tính theo chiều xuôi chiều dòng khí;
D: đường kính trong của ống khói tại vị trí lấy mẫu (đối với ống khói hình chữ nhật, đường kính trong D được tính theo công thức D = 4 x (diện tích tiết diện/chu vi).

Hình 1. Vị trí lỗ lấy mẫu
2. Yêu cầu lỗ lấy mẫu: lỗ lấy mẫu bảo đảm đường kính từ 90 mm đến 110 mm, có nắp đậy để điều chỉnh độ mở rộng;
Đối với ống khói hình tròn: yêu cầu ít nhất 02 lỗ lấy mẫu theo 02 phương vuông góc với nhau;
Đối với ống khói hình chữ nhật: căn cứ vào tỉ lệ giữa chiều dài, chiều rộng và số điểm hút mẫu của ống khói để chọn số lỗ lấy mẫu phù hợp theo phương vuông góc với nhau;
Đối với những ống khói có đường kính trong lớn, cần tăng thêm lỗ lấy mẫu đối xứng nhau để giảm yêu cầu của độ dài cần lấy mẫu.
3. Xác định số điểm hút mẫu
a) Điểm hút mẫu nằm trên tiết diện ngang của ống khói tại vị trí lỗ lấy mẫu. Tiết diện ngang của ống khói được chia thành những phần bằng nhau theo 02 phương vuông góc với nhau;
b) Phương pháp xác định số điểm hút mẫu trên tiết diện ngang của ống khói: dựa trên tỉ lệ giữa đoạn A và đường kính trong D (A/D) hoặc tỉ lệ giữa đoạn B và đường kính trong D (B/D), chia thành 2 trường hợp:
b1) Trường hợp 1 – xác định vận tốc khí thải (không bao gồm việc lấy mẫu bụi): sử dụng Hình 2 để xác định số điểm hút mẫu tối thiểu;

Hình 2. Đồ thị lựa chọn số điểm hút mẫu tối thiểu theo phương ngang
(chỉ xác định vận tốc)
b1.1) Đối với ống khói hình tròn: chia mặt phẳng lấy mẫu thành những đường tròn đồng tâm, các điểm hút mẫu được chia đều trên 2 đường kính. Khoảng cách từ mỗi điểm hút mẫu đến thành trong của ống khói được xác định tại Bảng 31 dưới đây:
Bảng 31. Khoảng cách từ mỗi điểm hút mẫu đến thành trong của ống khói
(Khoảng cách từ mỗi điểm hút mẫu đến thành trong của ống khói tròn được tính bằng % của đường kính trong của ống khói %D)
| Kí hiệu điểm hút mẫu dọc theo đường kính ống khói | Số điểm hút mẫu trên một đường kính ống khói | |||||||||||
| 2 | 4 | 6 | 8 | 10 | 12 | 14 | 16 | 18 | 20 | 22 | 24 | |
| 1 |
14,6 |
6,7 |
4,4 |
3,2 |
2,6 |
2,1 |
1,8 |
1,6 |
1,4 |
1,3 |
1,1 |
1,1 |
| 2 |
85,4 |
25,0 |
14,6 |
10,5 |
8,2 |
6,7 |
5,7 |
4,9 |
4,4 |
3,9 |
3,5 |
3,2 |
| 3 |
|
75,0 |
29,6 |
19,4 |
14,6 |
11,8 |
9,9 |
8,5 |
7,5 |
6,7 |
6,0 |
5,5 |
| 4 |
|
93,3 |
70,4 |
32,3 |
22,6 |
17,7 |
14,6 |
12,5 |
10,9 |
9,7 |
8,7 |
7,9 |
| 5 |
85,4 |
67,7 |
34,2 |
25,0 |
20,1 |
16,9 |
14,6 |
12,9 |
11,6 |
10,5 |
||
| 6 |
95,6 |
80,6 |
65,8 |
35,6 |
26,9 |
22,0 |
18,8 |
16,5 |
14,6 |
13,2 |
||
| 7 |
|
89,5 |
77,4 |
64,4 |
36,6 |
28,3 |
23,6 |
20,4 |
18,0 |
16,1 |
||
| 8 |
|
96,8 |
85,4 |
75,0 |
63,4 |
37,5 |
29,6 |
25,0 |
21,8 |
19,4 |
||
| 9 |
|
|
91,8 |
82,3 |
73,1 |
62,5 |
38,2 |
30,6 |
26,2 |
23,0 |
||
| 10 |
|
|
97,4 |
88,2 |
79,9 |
71,7 |
61,8 |
38,8 |
31,5 |
27,2 |
||
| 11 |
93,3 |
85,4 |
78,0 |
70,4 |
61,2 |
39,3 |
32,3 |
|||||
| 12 |
97,9 |
90,1 |
83,1 |
76,4 |
69,4 |
60,7 |
39,8 |
|||||
| 13 |
|
94,3 |
87,5 |
81,2 |
75,0 |
68,5 |
60,2 |
|||||
| 14 |
|
98,2 |
91,5 |
85,4 |
79,6 |
73,8 |
67,7 |
|||||
| 15 |
|
|
95,1 |
89,1 |
83,5 |
78,2 |
72,8 |
|||||
| 16 |
|
|
98,4 |
92,5 |
87,1 |
82,0 |
77,0 |
|||||
| 17 | 95,6 | 90,3 | 85,4 | 80,6 | ||||||||
| 18 | 98,6 | 93,3 | 88,4 | 83,9 | ||||||||
| 19 | 96,1 | 91,3 | 86,8 | |||||||||
| 20 | 98,7 | 94,0 | 89,5 | |||||||||
| 21 | 96,5 | 92,1 | ||||||||||
| 22 | 98,9 | 94,5 | ||||||||||
| 23 | 96,8 | |||||||||||
| 24 | 99,9 | |||||||||||

Hình 3: Phân bố 12 điểm hút mẫu đối với ống khói hình tròn
b1.2) Đối với ống khói hình chữ nhật: số điểm hút mẫu được quy định tại Bảng dưới. Sau khi xác định được số điểm hút mẫu, tiến hành chia tiết diện ngang ống khói thành các ô bằng nhau và điểm hút mẫu nằm ở tâm các ô đó.
Bảng ma trận số điểm hút mẫu đối với ống khói hình chữ nhật
|
Số điểm hút mẫu |
Ma trận |
|
9 |
3 x 3 |
|
12 |
4 x 3 |
|
16 |
4 x 4 |
|
20 |
5 x 4 |
|
25 |
5 x 5 |
|
30 |
6 x 5 |
|
36 |
6 x 6 |
|
42 |
7 x 6 |
|
49 |
7 x 7 |

Hình 4: Phân bố 12 điểm hút mẫu đối với ống khói hình chữ nhật
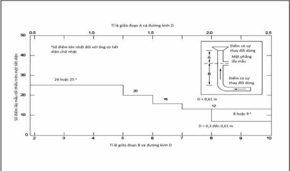
b2) Trường hợp 2 – xác định vận tốc khí thải (bao gồm việc lấy mẫu bụi): sử dụng Hình 5 để xác định số điểm hút mẫu tối thiểu:

Hình 5: Đồ thị lựa chọn số điểm hút mẫu tối thiểu theo phương ngang (bao gồm lấy mẫu bụi)
b2.1) Khi vị trí lấy mẫu thỏa mãn trường hợp lý tưởng (nằm trong đoạn 8D đến 2D), số điểm hút mẫu được chọn như sau:
Nếu D > 0,61 m: 12 điểm đối với ống khói hình chữ nhật hoặc hình tròn; Nếu 0,3 m < D < 0,61 m: 8 điểm đối với ống khói hình tròn hoặc 9 điểm đối với ống khói hình chữ nhật.
b2.2) Để bảo đảm tính ổn định của dòng khí trong ống khói, điểm hút mẫu gần nhất tính từ thành ống khói theo phương ngang phải bảo đảm một khoảng cách nhất định:
– Đối với ống khói có D ≥ 0,61m: khoảng cách tối thiểu là 2,5cm;
– Đối với ống khói có D < 0,61m: khoảng cách tối thiểu là 1,3cm.
4. Xác định chế độ chảy của dòng khí tại vị trí lấy mẫu: phải xác định trước khi đo. Phương pháp xác định như sau: nối ống Pitot hình chữ S vào áp kế, hướng đầu của Pitot vuông góc với tiết diện ngang của ống khói, kiểm tra đồng hồ đo áp kế, nếu đồng hồ đo chênh áp hiển thị giá trị thì hệ thống được xác định là kín. Tiến hành quay ống Pitot một góc ± 90o nếu đồng hồ đo chênh áp hiển thị giá trị thì ở vị trí này dòng khí ở chế độ chảy xoáy, điều kiện lấy mẫu tại vị trí đó không bảo đảm và cần xác định vị trí khác.
5. Ghi chép biên bản xác định điểm hút mẫu: theo Biểu 1 Phụ lục này
Biểu 1
BIÊN BẢN XÁC ĐỊNH ĐIỂM HÚT MẪU
TÊN CƠ QUAN (thực hiện quan trắc):
……………………………………………………………………………………
ĐT: ……….. / Fax:………./E-mail:………………/Địa chỉ: …………
BIÊN BẢN
Xác định điểm hút mẫu
Cơ sở:…………………………………………………..Ngày:………………….
Địa chỉ: ………………….…………………………….Người lấy mẫu:……… Địa điểm lấy mẫu: ………………………………………………………………
| Khoảng cách từ mép ngoài lỗ lấy mẫu đến thành xa phía trong ống khói (Lfw) (m) |
|
||||
| Khoảng cách từ mép ngoài lỗ lấy mẫu đến thành gần phía trong ống khói (hay độ dày của thành) (Lnw) (m) | |||||
| Đường kính trong ống khói D = Lfw – Lnw (> 0,3m) (m) | |||||
| Tiết diện ngang ống As= D2/4 | |||||
| Đoạn B ≥ 2D (m) | |||||
| Tỉ lệ B/D | |||||
| Số điểm cần lấy mẫu theo B/D | |||||
| Đoạn A ≥ 0,5D (m) | |||||
| Tỉ lệ A/D | |||||
| Số điểm cần lấy mẫu theo A/D | |||||
|
Điểm hút mẫu |
% D (% đường kính trong ống khói) |
Khoảng cách từ thành trong ống khói đến điểm hút mẫu |
Khoảng cách từ mép ngoài lỗ lấy mẫu đến điểm hút mẫu |
||
|
1 |
|||||
|
2 |
|||||
|
3 |
|||||
|
4 |
|||||
|
5 |
|||||
|
…. |
|||||
…, ngày…… tháng…… năm …
|
Đại diện Cơ sở |
Trưởng nhóm quan trắc |
Người quan trắc |
Biểu 2
BIÊN BẢN LẤY MẪU TẠI HIỆN TRƯỜNG
| Tên hoặc ký hiệu mẫu | |
| Loại hoặc dạng mẫu | |
| Vị trí quan trắc | |
| Tọa độ địa lý | |
| Ngày quan trắc |
h, ngày tháng năm |
| Tên người quan trắc | |
| Đặc điểm thời tiết lúc quan trắc | |
| Thiết bị quan trắc | |
| Phương pháp quan trắc | |
| Phương pháp bảo quản (hóa chất, điều kiện) | |
| Lượng mẫu | |
| Thông tin khác (nếu có): |
|
Đại diện Cơ sở được lấy mẫu |
Trưởng nhóm quan trắc |
Người quan trắc |
* Chú thích:
Vị trí quan trắc: tên hoặc mô tả chính xác điểm quan trắc hoặc lấy mẫu.
Tọa độ điểm quan trắc: tọa độ chính xác của vị trí quan trắc hoặc lấy mẫu, sử dụng hệ tọa độ kinh độ/vĩ độ (Long/Lat).
Ngày quan trắc: nhập đầy đủ dưới dạng ngày/tháng/năm (dd/mm/yyyy).
Thiết bị quan trắc: tên các thiết bị, ký hiệu thiết bị quan trắc tại hiện trường.
Phương pháp quan trắc: số hiệu tiêu chuẩn, phương pháp dùng để quan trắc hiện trường (TCVN, ISO, tiêu chuẩn quốc tế khác được công nhận…).
Biểu 3
BIÊN BẢN ĐO MẪU TẠI HIỆN TRƯỜNG
| Đơn vị quan trắc | |
| Vị trí đo mẫu | |
| Toạ độ địa lý | KĐ: ° ‘ ” VĐ: ° ‘ “ |
| Loại mẫu | |
| Tên hoặc ký hiệu mẫu | |
| Ngày đo | Ngày tháng năm |
| Thông tin khác (nếu có) |
KẾT QUẢ ĐO MẪU TẠI HIỆN TRƯỜNG
– Thể tích đo mẫu: ………………….
– Thiết bị đo: …………………………………………………………………………
| TT | Thông số | Đơn vị | Phương pháp đo |
Kết quả đo |
||
|
Thời gian đo lần 1 ……… |
Thời gian đo lần 2 (nếu có) ……… |
Thời gian đo lần 3 (nếu có) ………. |
||||
|
1 |
||||||
|
2 |
||||||
|
… |
||||||
|
Đại diện Cơ sở được đo mẫu |
Trưởng nhóm quan trắc |
Người quan trắc |
Biểu 4
BIÊN BẢN LẤY MẪU QC
| Đơn vị quan trắc | |
| Thời gian lấy mẫu | h, ngày tháng năm |
| Thành phần môi trường | |
| Ký hiệu mẫu | |
| Loại mẫu QC | |
| Thông số phân tích | |
| Lượng mẫu | |
| Phương pháp bảo quản (hóa chất, điều kiện) | |
| Thông tin khác (nếu có) |
|
Người quan trắc |
Trưởng nhóm quan trắc hiện trường |
TRUNG TÂM ỨNG PHÓ SỰ CỐ AN TOÀN MÔI TRƯỜNG
Số 05B Phổ Quang, Phường 2, Quận Tân Bình, Thành phố Hồ Chí Minh
0938 040 020 (Ms.Chi) – 0903 010 140 (Ms.Trâm)
khanhchi@ungphosuco.vn – ngoctram@ungphosuco.vn


